3287 N Cormac Loop, Post Falls, ID 83854
3287 N Cormac Loop, Post Falls, ID 83854
Tullamore Community 4 bed 3 bath with office
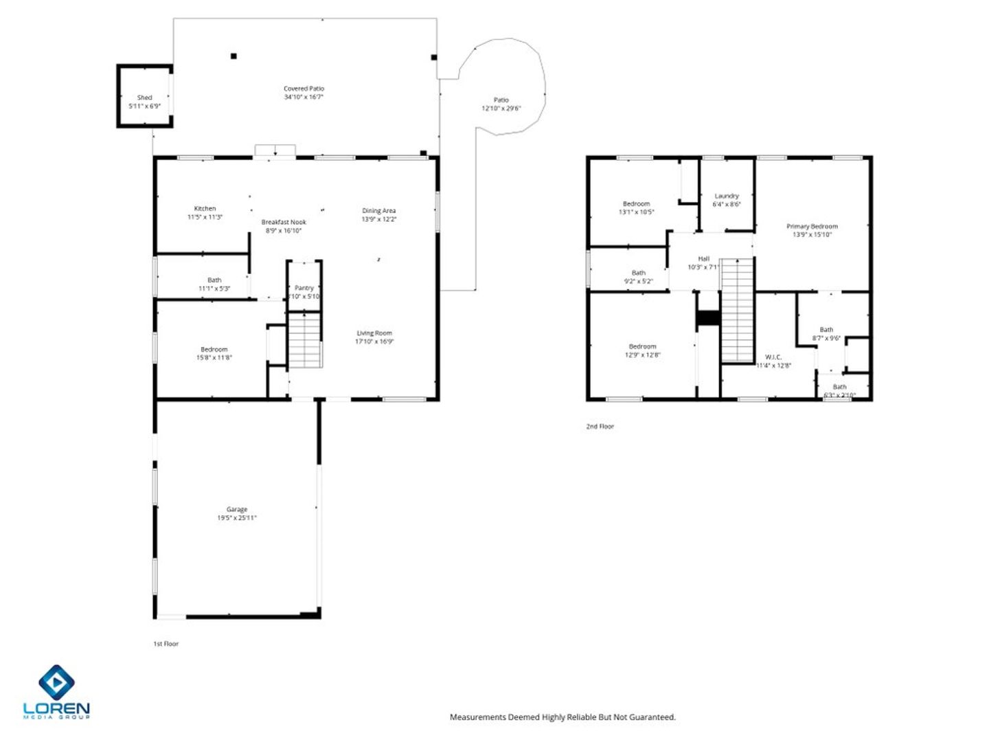
This 2,070 square foot home is centrally located in Post Falls close to schools, shopping and HWY 41.
Main floor has 9 ft ceilings, luxury vinyl plank flooring with an open concept. Large living room and dining area with kitchen. Kitchen is fully equipped with stainless steel appliances, quartz countertops and a pantry. One bedroom and full bath. Main floor has a slider door that opens out to the fully covered, extended patio, fire pit and fenced yard. Yard has sprinkler system front & back with 2 storage sheds.
Upstairs has a primary bedroom with vaulted ceilings, en-suite bathroom with walk in closet and double vanity. 2 additional bedrooms, hallway bathroom and laundry room. Washer & dryer are included but are complimentary items (will not be replaced or repaired).
3 car garage has one bay converted to a fully finished office. 2 parking bays, extra shelving for storage.
Rent is $2,795/month with a 6 or 18 month lease required. Tenant pays all utilities separately.
Tenant is responsible for all lawn care & snow removal.
(1) dog might be ok with owner approval. No dog under 2 years old, no dog over 40 lbs and no aggressive breeds. $500 refundable pet deposit and $50 monthly pet fee required.
Visit our website www.benchmarkpm.org to join one of our open house showings or apply on-line.
650+ credit score
no co-signers
Main floor has 9 ft ceilings, luxury vinyl plank flooring with an open concept. Large living room and dining area with kitchen. Kitchen is fully equipped with stainless steel appliances, quartz countertops and a pantry. One bedroom and full bath. Main floor has a slider door that opens out to the fully covered, extended patio, fire pit and fenced yard. Yard has sprinkler system front & back with 2 storage sheds.
Upstairs has a primary bedroom with vaulted ceilings, en-suite bathroom with walk in closet and double vanity. 2 additional bedrooms, hallway bathroom and laundry room. Washer & dryer are included but are complimentary items (will not be replaced or repaired).
3 car garage has one bay converted to a fully finished office. 2 parking bays, extra shelving for storage.
Rent is $2,795/month with a 6 or 18 month lease required. Tenant pays all utilities separately.
Tenant is responsible for all lawn care & snow removal.
(1) dog might be ok with owner approval. No dog under 2 years old, no dog over 40 lbs and no aggressive breeds. $500 refundable pet deposit and $50 monthly pet fee required.
Visit our website www.benchmarkpm.org to join one of our open house showings or apply on-line.
650+ credit score
no co-signers
Contact us:




















































